Skip to Content

CALL US TODAY AT (478) 750-7507

Medical/Office Building For Sale

100, 104, & 110 Cattlemens Drive,
Macon, GA 31220

**Under Contract**

$825,000

Listing Agent

Allie Bailey Grambling

Salesperson

Office: (478)750-7507

Mobile: (478)955-8333

Email: [email protected]

Property Details

  • County: Bibb
  • Space Available (SF): 3761
  • Lot Size (Acres): 10.09
  • Stories: 1
  • Parking: 15 Paved Spaces
  • Zoning: C-3 (Commercial) | A-4 (Agricultural)

Detailed Description

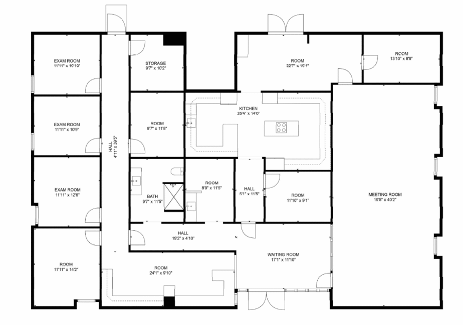
This ±3,761 SF medical/office building sits on three parcels totaling ±10.09 acres and offers a strong opportunity for investors or owner-users seeking a functional commercial property with additional land for future use. The building features four exam or office rooms, two private offices, a large reception or nurse’s station, a waiting room/lobby, conference room, full kitchen, two restrooms, multiple storage areas, and an IT closet, providing a layout suitable for medical, professional, or administrative users. The property includes 15 paved parking spaces and is positioned along a corridor surrounded by industrial, distribution, and service-based businesses, creating steady commercial activity in the area. With the building zoned C-3 (Commercial) and the surrounding land zoned A-4 (Agricultural), the site offers flexibility for expansion, redevelopment, or potential subdivision, while maintaining strong visibility and convenient access to major routes including Thomaston Road (23,100 VPD) and Interstate 475 (65,400 VPD.)

Location Map

Google Map of 100, 104, & 110 Cattlemens Drive Macon,GA 31220

View Our Services

View All

Interested in commercial or investment real estate?

Call The Summit Group at (478) 750-7507 to learn how we can help!