Skip to Content

CALL US TODAY AT (478) 750-7507

Free Standing Office Building For Sale Or Lease

1205 Russell Parkway,
Warner Robins, GA 31088

$525,000

$16/SF

Listing Agent

Kevin Harkins

Associate Broker

Office: 478-750-7507

Mobile: 478-338-0623

Email: [email protected]

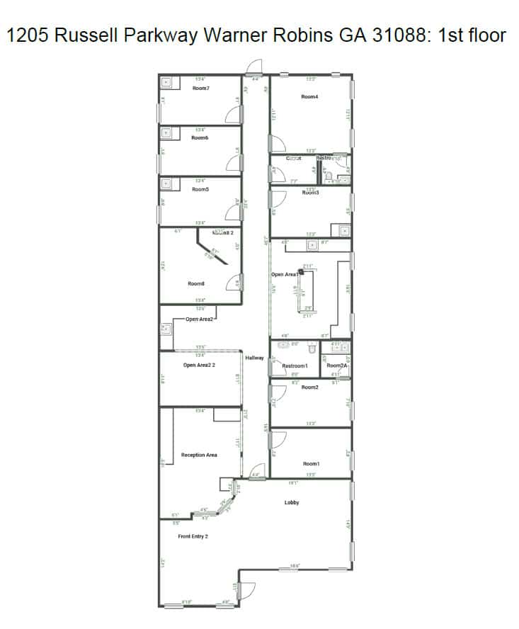
Property Details

  • County: Houston
  • Space Available (SF): 2829
  • Lot Size (Acres): 0.67
  • Stories: 1
  • Parking: Ample

Detailed Description

Positioned along one of Warner Robins’ most heavily traveled corridors, this ±2,829 SF freestanding office building on ±0.67 acres offers a highly functional layout with seven private offices, a reception area, staff room, and large lobby/waiting area, making it ideal for medical or professional users seeking strong visibility, ample parking, excellent signage opportunities, and convenient access to major thoroughfares in a central, high-demand location with traffic counts exceeding 31,000 vehicles per day.

Virtual Tour:

https://app.docusketch.com/player/CVCHwXed

Location Map

Google Map of 1205 Russell Parkway Warner Robins,GA 31088

View Our Services

View All

Interested in commercial or investment real estate?

Call The Summit Group at (478) 750-7507 to learn how we can help!