Skip to Content

CALL US TODAY AT (478) 750-7507

Pre-Leasing | The Enclave at Lake Joy

Lake Joy Road,
Warner Robins, GA

$32/SF

Listing Agent

Kevin Harkins

Associate Broker

Office: 478-750-7507

Mobile: 478-338-0623

Email: [email protected]

Property Details

  • Building Size (SF): 1,067-9,200
  • Year Built: 2026
  • Stories: 1
  • Parking: Ample
  • Zoning: C-2 (Commercial)

Detailed Description

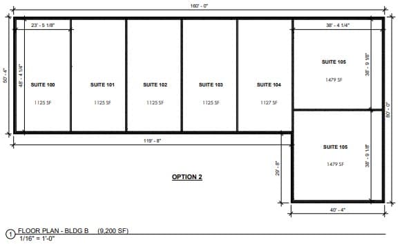
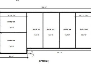
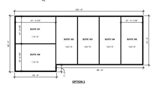
Pre-leasing opportunities are now available at The Enclave at Lake Joy, a premier new construction retail center planned for 2026 along Lake Joy Road in Warner Robins. Strategically positioned within one of Houston County’s fastest-growing commercial corridors, this thoughtfully designed development will offer two retail buildings totaling approximately ±16,250 square feet. Building A will feature suites ranging from ±1,067 SF to ±7,050 SF, while Building B will accommodate spaces from ±1,125 SF to ±9,200 SF, providing flexibility for a variety of retail, restaurant, and service-oriented users.

Offered at $32/SF, NNN, the property is zoned C-2 (Commercial) and will have all utilities available, allowing for a seamless development and buildout process. The Enclave at Lake Joy is part of a larger mixed-use community that will include approximately 209 townhomes, loft apartments with ground-level retail, and two retail strip centers—creating a built-in customer base and consistent daily traffic.

With excellent road frontage and strong traffic visibility, this location benefits from significant surrounding residential growth and close proximity to major national and regional retailers. Its placement within a rapidly expanding trade area makes it an ideal opportunity for businesses seeking long-term growth, high exposure, and a presence in one of Middle Georgia’s most active retail corridors.

Location Map

Google Map of Lake Joy Road Warner Robins,GA

View Our Services

View All

Interested in commercial or investment real estate?

Call The Summit Group at (478) 750-7507 to learn how we can help!